rainer köberl: hevi‘s „plansch“ im viaduktbogen 69
Ein Text von Rainer Köberl über das im frei gewordenen Bogen 69 entstandene Lokal "Plansch", erschienen in: aut: info 1/2022.
weiterlesen …
Das "Babalon" in den Innsbrucker Bögen
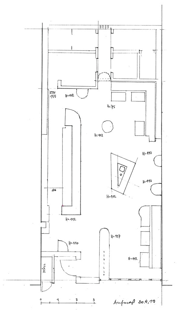
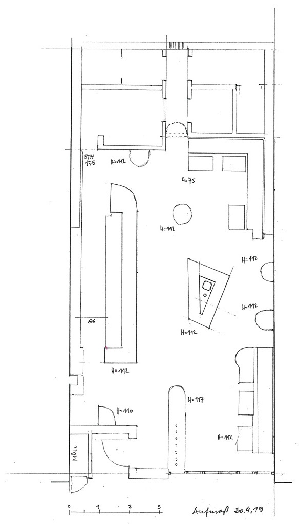
So wie das „Café Central“ das einzige wirkliche Café in Innsbruck ist, so ist das „Babalon“ die einzige wirkliche Bar (1). Seit Mai 1998 wird es von Nico – Werner Nicolussi – im Viaduktbogen 22 (2) geführt und wurde auch von ihm – in dem ca. 7 x 14 m großen Raum – selbst „entworfen“.
Die 6 m lange Bar mit einem 50 cm breiten Barbrett stand schon in „der Klappe“, Nicos erstem Lokal in diesem Bogen, der Rest der Einrichtungsgegenstände stammt zum größten Teil aus dem ehemaligen „Städtischen Café“, ebenfalls ein Lokal Nicos, das sechzig Bögen weiter bestand.
Schon in der „Klappe“ besetzte eine weiße Stele aus Laaser Marmor die Mitte des Lokals. Im „Städtischen Café“ gab es auch ein mittiges Möbel, die Palme darin war jedoch eingegangen. Das „Was kann in der Mitte sein?“ beschäftigte Nico, der sich damals mit C. G. Jung und religiösen, überkonfessionellen Themen befasste, tagelang im leeren Raum. Einen „schrägen Vogel“ begleitend, kam er „zufällig“ in die „Grödner Kunst-stube“ in der Wilhelm-Greil-Straße. Der Schnitzer Perathoner aus Gröden verkaufte dort Madonnen, bot aber auch verschiedenste Varianten in einem Katalog an. „Das müsste man sich trauen“, dachte Nico und fragte nach: „Gibt es die auch in Lebensgröße?“. Wenig später stand sie, die „schöne, einfache, urbane, gnadenspendende, nicht bäuerlich fromme und ohne Kind im Arm Madonna“ (3) im Babalon, immer mit einer brennenden Kerze davor. Erst 2017 wurde sie extra noch beleuchtet – ganz exakt nur sie – ohne jemanden zu blenden.
Die Farbatmosphäre im Babalon ist braun, grau und gelb mit dem stärksten Licht hinter den farbigen Flaschen, den leicht unterschiedlichen, einfachen und ausgeblendeten Stahlzylinderleuchten. Nur ein Platz hat etwas stärkeres Licht, nämlich der Tisch des fast jeden Abend dort arbeitenden Schriftstellers Bernhard Kathan. In einem kleinen Fernseher an der Rückwand wird ARTE tonlos übertragen. Ursprünglich saß man überall niedrig – es waren ja die alten Möbel, aber diese wurden vor etwa 10 Jahren im vorderen Bereich etwas „aufgebockt“ – nun sitzt man außer im hinteren Eck überall hoch. Die klare Unterschiedlichkeit der verschiedenen Zonen im Raum, die hauptsächlich durch die besetzte Mitte geschaffen wurde, erleichtert – ausgehend von zahlreichen Kardinalpunkten ohne „Platzentscheidungsprobleme“ – eine „langsame Besiedelung“ und „Verdichtung“ des Lokals, ähnlich wie bei einem, in leicht kupiertem Gelände gewachsenen Dorf.
Im hintersten Eck, die Rückwand kaum verletzend, gibt es eine 50 cm breite und 155 cm hohe Tür, hinter der in einer kleinen Küche der beste Toast Innsbrucks zubereitet wird, der manchmal im Trubel auch verbrennt. Es war dem groß gewachsenen Nico wichtig, dass diese Nebentür, über der der Elektroverteiler strategisch positioniert wurde, den Barraum nicht „belästigt“. Dass sich dahinter ein hoher, fast kapellenartiger Raum verbirgt, der zwar nur Nebenraum ist, wahrscheinlich im abendlichen Stress aber Erholung für die Barkeeper bedeutet, entdeckte ich erst beim Aufmessen der Räumlichkeiten. Es macht mir dieses Lokal nun noch wertvoller, in dem so manches ausgeheckt und begonnen wurde.
(1) Bar kommt vom englischen Wort „bar“ – auf Deutsch „Stange“ bzw. aus dem englischen Wort „barrier“ – auf Deutsch „Barriere“. „The barrier“ bot zur Zeit der Besiedelung Amerikas Schutz des Getränkevorrats und war gleichzeitig Verkaufsstelle. Dieser Tisch, diese Theke wurde natürlich auch zum Konsumort und Bar genannt. Später nannte man die ganze Räumlichkeit darum herum Bar.
(2) Die Geschichte der Viaduktbögen wurde im „small is beautiful“-Beitrag „Der Innsbrucker Bahnviadukt. Lichtakupunkturen entlang eines Stadtmeridians“ besprochen, erschienen in der aut: info 1/2018.
(3) Zitat Nico
Text: Rainer Köberl, aus aut: info 3/19
Ein Text von Rainer Köberl über das im frei gewordenen Bogen 69 entstandene Lokal "Plansch", erschienen in: aut: info 1/2022.
weiterlesen …